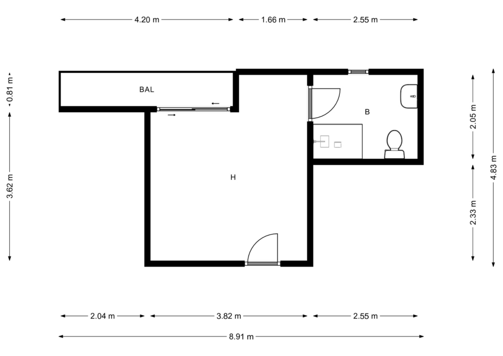
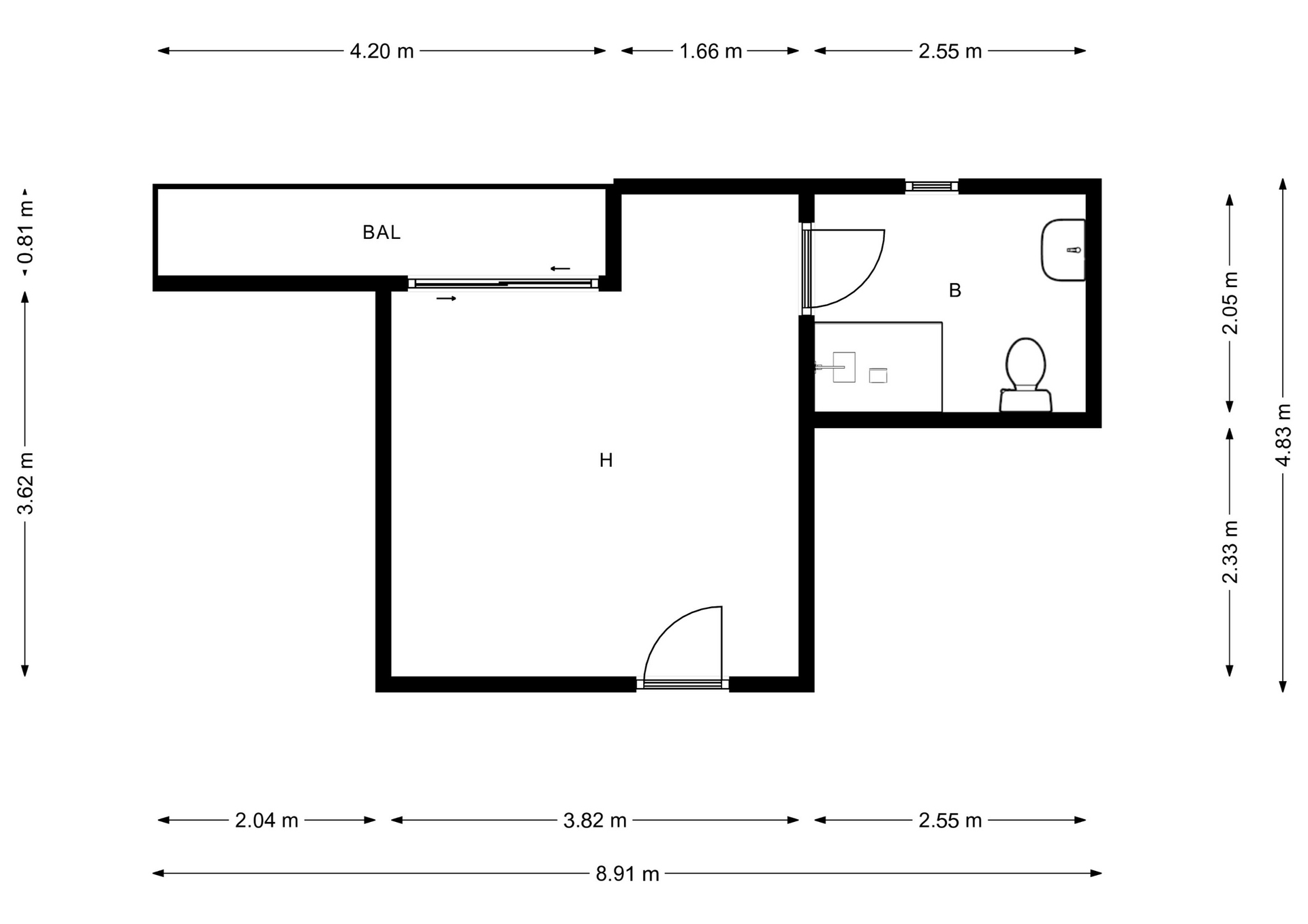
Suit Soto con Baño privado
Esta habitación Suite es la tercera más grande de la vivienda, dispone de baño privado en Suite y terraza privada
La habitación cuenta con una dimensión de 19 M2, cama de matrimonio de 1,35 cm y terraza privada con vistas a la calle.
- Contratos con duración mínima de dos meses.
- Gastos de suministros Agua y luz incluidos hasta 150 € mensuales.
- Internet incluido en el precio.
- Precios por habitación y persona. Persona adicional 80 €/mes.
- Documentación que se solicita del Huésped DNI / NIE / PASAPORTE.
- Se admiten parejas.
- Prohibido fumar.
Todas nuestras propiedades disponen de cocina a compartir totalmente equipada para cocinar con horno eléctrico, vitro cerámica, Frigorífico, microondas, tostador, lavadora y secadora.
Gastos a la firma del contrato: Mes de renta + fianza (igual a mes de renta) + Comisión de agencia (igual a mes de renta).
La agencia:
- Es la encargada y responsable del depósito y guarda de la fianza que entregas.
- Es la encargada de ayudar y aclarar cualquier siniestro o altercado.
- Es la encargada de verificar que tu arriendo es totalmente legal.
- Dispone de un teléfono a tu disposición las 24 horas.
Reservada.
El tiempo que le queda a esta suite para estar disponible es:
Provincia: Alicante
Ciudad: Alicante
Zona: Centro
Código Postal: 03002
Tipología: Suit
Baño privado: Si
M² Útiles: 14 M2
M² Construidos: 15 M2
Ascensor: SI
Ventana: A la calle
Altura: 6º
Estado: Reformado
Operación: Alquiler
Armario: SI
Cocina compartida: SI
Tipo de Cama : Matrimonio
Próximas Jornadas de Puertas Abiertas
Jornadas anteriores
- Vivienda en Alicante, Playa de San Juan
- Vivienda en Alicante, Los Ángeles
- Vivienda en Alicante, Conde Lumiares
- Vivienda en Alicante, San Gabriel
- Vivienda en Alicante, Playa San Juan
- Vivienda en Calpe, puerto deportivo
- Vivienda sita en Catral
- Vivienda sita en Madrid
- Vivienda sita en Barcelona













































